Office/ Flex Space Design

Custom-Built Luxury Office Condominiums in Katy, TX – Designed for Your Business Success

KMK Development Services, LLC is proud to bring 56 luxury, single-story office condominiums to the heart of Katy, TX. These premier commercial spaces are being constructed from the ground up to meet the needs of modern businesses, offering a seamless blend of functionality, style, and convenience.

Our expert architects and designers are meticulously crafting each unit to create a professional environment where businesses can thrive. With innovative layouts, high-end finishes, and a focus on maximizing operational efficiency, these office condominiums are tailored to elevate your business presence.

Located in Katy’s bustling commercial district, this prime real estate offers easy access to major freeways, affluent neighborhoods, and a thriving business community. Whether you’re a medical professional, service provider, or corporate team, these spaces are built to support your success.

Operate with Maximum Efficiency

Owning your office condominium in Katy, TX, means taking control of your business operations while enjoying shared costs for maintenance and landscaping of all common areas. These professionally managed spaces ensure a well-maintained, polished appearance, allowing you to focus on growing your business.

Built to Match Your Standards and Business Goals

At KMK Development Services, LLC, we understand that every business is unique. That’s why our office condominiums are fully customizable and designed to fit your exact specifications. With units starting at 1,200 square feet and scalable up to 6,000 square feet, you have the flexibility to create a space that perfectly aligns with your operational and aesthetic needs.

From layout design to finishes, you have the freedom to tailor your space to reflect your brand and support your team’s productivity. Whether you need a modern, open-concept workspace or a private, professional office setting, KMK Development delivers a solution that works for you.

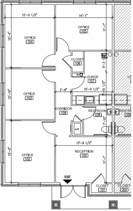
Versatile Commercial Real Estate Floor Plans Designed for Every Business in 77494

Explore our customizable commercial real estate spaces in Katy, TX, tailored to meet the needs of diverse businesses. Each standard unit is thoughtfully designed with a welcoming reception area, a fully equipped kitchen, four private offices, and a restroom to ensure functionality and comfort. Ideal for growing businesses, these spaces offer flexibility and convenience in one of Katy’s most sought-after commercial locations.

Whether you’re launching a new venture or expanding your operations, our spaces provide the perfect foundation for success. Contact us today to learn more and schedule a tour!

The reception area (pictured below) is spacious, and provides the perfect place to take a break and step out of the office.

A typical single floor plan will have about 1,225 sf.

Luxury Commercial Real Estate on 6 Acres in Katy, TX – Your Upscale Business Flex Space Awaits

Discover unparalleled luxury and opportunity in Katy, TX, with KMK Development’s exclusive 6-acre commercial real estate project. Strategically located amidst renowned national and international companies, our business condos offer a prestigious address designed to elevate your brand. With 56 meticulously maintained units, each crafted to the highest standards, you’ll experience the perfect blend of functionality, sophistication, and attention to detail. Whether you’re seeking a dynamic space to grow your business or a prime investment in Katy’s thriving commercial hub, KMK Development delivers the quality and professionalism you deserve.

Schedule a tour today and secure your spot in this premier business community!

Reserve your space today!